Año construcción: 2013/2014
Sup: 240m2
Sup. Lote: 450m2
Ubicación: Las Heras, Mendoza.
Fotografia: Luis Abba Estudio.
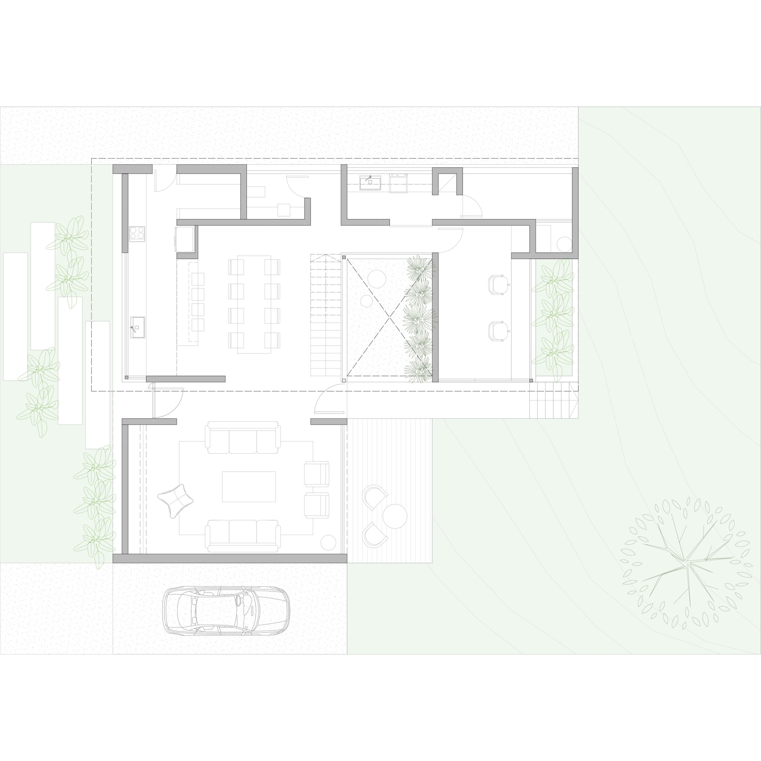
Proyecto y ejecución de vivienda unifamiliar en B° Dalvian, Mendoza.
El proyecto consiste en la yuxtaposición de dos volúmenes-cintas de hormigón que abren sus caras al Norte y al Este aprovechando las mejores orientaciones, vistas y asoleamiento.
El terreno tiene un desnivel de 2 metros, por lo cual el gimnasio en planta baja se encuentra semienterrado y aporta vistas rasantes al jardín, respetando la pendiente natural del predio.
Se accede a planta alta, a traves de una escalera suspendida, contigua a un muro calado, que tamiza la luz solar del norte, generando una espacialidad especial.
La materialidad se basa casi en su totalidad en hormigón visto y cemento, combinado con el revestimiento metálico de las fachadas.























